JA, zur voll modernisierten Bürofläche in zentraler Lage von Solingen-Ohligs

Objektdetails
Kauf oder Miete
Vermietung
Ort
Solingen
Objektart
Büro / Praxis

Bürofläche
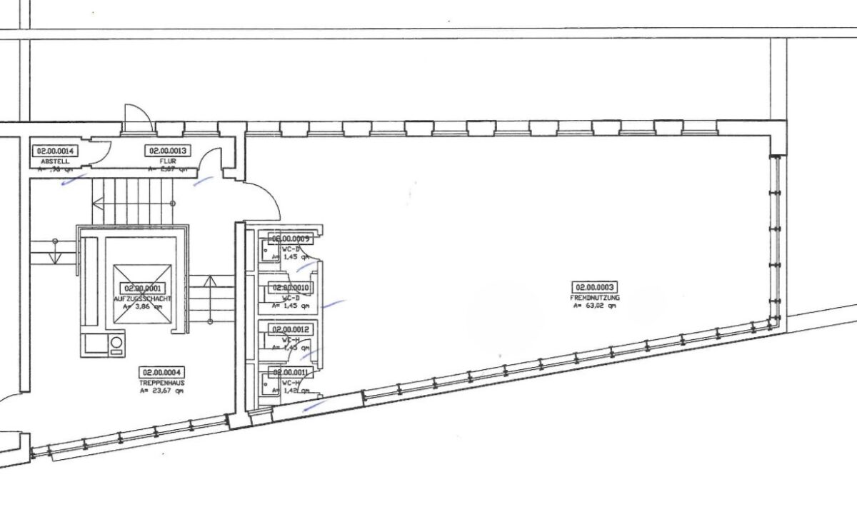
72,42 m²
Zimmer
1
Kaltmiete
869 €

Die voll modernisierte Bürofläche mit großer Fensterfront befindet sich im 2. Obergeschoss eines repräsentativen Geschäftshauses und ist über ein gepflegtes Treppenhaus mit Aufzugsanlage zu erreichen.

Die Bürofläche in einem mehrgeschossigen Geschäftshaus befindet sich in zentraler Lage von Solingen-Ohligs und ist als 1-A-Lage anzusehen. Die Ohligser Innenstadt mit Restaurants, Cafés, Supermärkten, Ärzten und Apotheken sowie der Hauptbahnhof sind in nur wenige Minuten zu Fuß erreichbar.
Die Autobahnauffahrt Solingen-Langenfeld (A3) und das AB-Kreuz Hilden (A46/A3) sind ca. 10 Fahrminuten entfernt.

– Großraumbüro
– helle Räumlichkeiten
– vom Aufzug zum Büro nur wenige Stufen
– separater Abstellraum auf gleicher Ebene
– zentrale Lage
– Treppenhaus mit Aufzug
– Gegensprechanlage
– Erstbezug nach Vollmodernisierung
– Fenster zur Frontseite und zur Rückseite
– elektrischer Sonnenschutz (hinten)
– neue Klimaanlage
– neue Bürobeleuchtung (3.000K warmweiß)
– neue Haustür
– Gas Zentralheizung / Energieausweis liegt vor
– neuer Bodenbelag
– komplett erneuertes WC
– Einbau neuer Teeküche (zzgl. 35 EUR/mtl.)
– Treppenhausreinigung
– 1 kleiner Abstellkeller auf Wunsch
– Wasseruhren (Zwischenzähler)

– auf Wunsch PKW-Stellplätze in der Tiefgarage anmietbar
(zzgl. 79 EUR/mtl.)

Kaltmiete
869 €

Nebenkosten
325,89 €

Zzgl. Mehrwertsteuer:
Nein

Provisionspflichtig
Nein

Kaution
2.607,00 €

Baujahr1992

ArtVerbrauch

Gültig bis02.12.2030

Energiebedarf88,5 kWh/(m²*a)

HeizartGas

Kartenansicht

Ihr Ansprechpartner
Holger Keil
Prokurist und kaufmännische Leitung
Telefon: 0212-221380
Ihr Ansprechpartner
Jansen Immobilien GmbH
Telefon: 0212-221380

    Ja

    Bitte geben Sie diesen Code ein:
    captcha